Tagungsraum mieten in Steißlingen
- Flexibel verfügbar
- Verpflegung buchbar
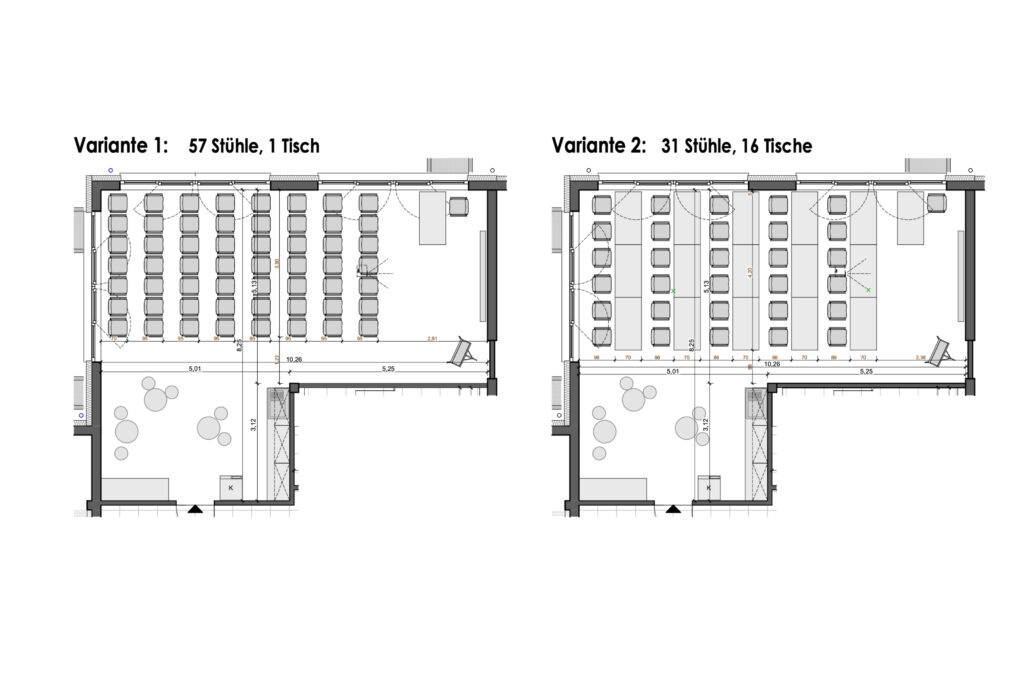
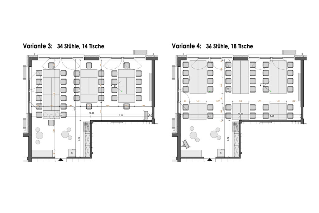
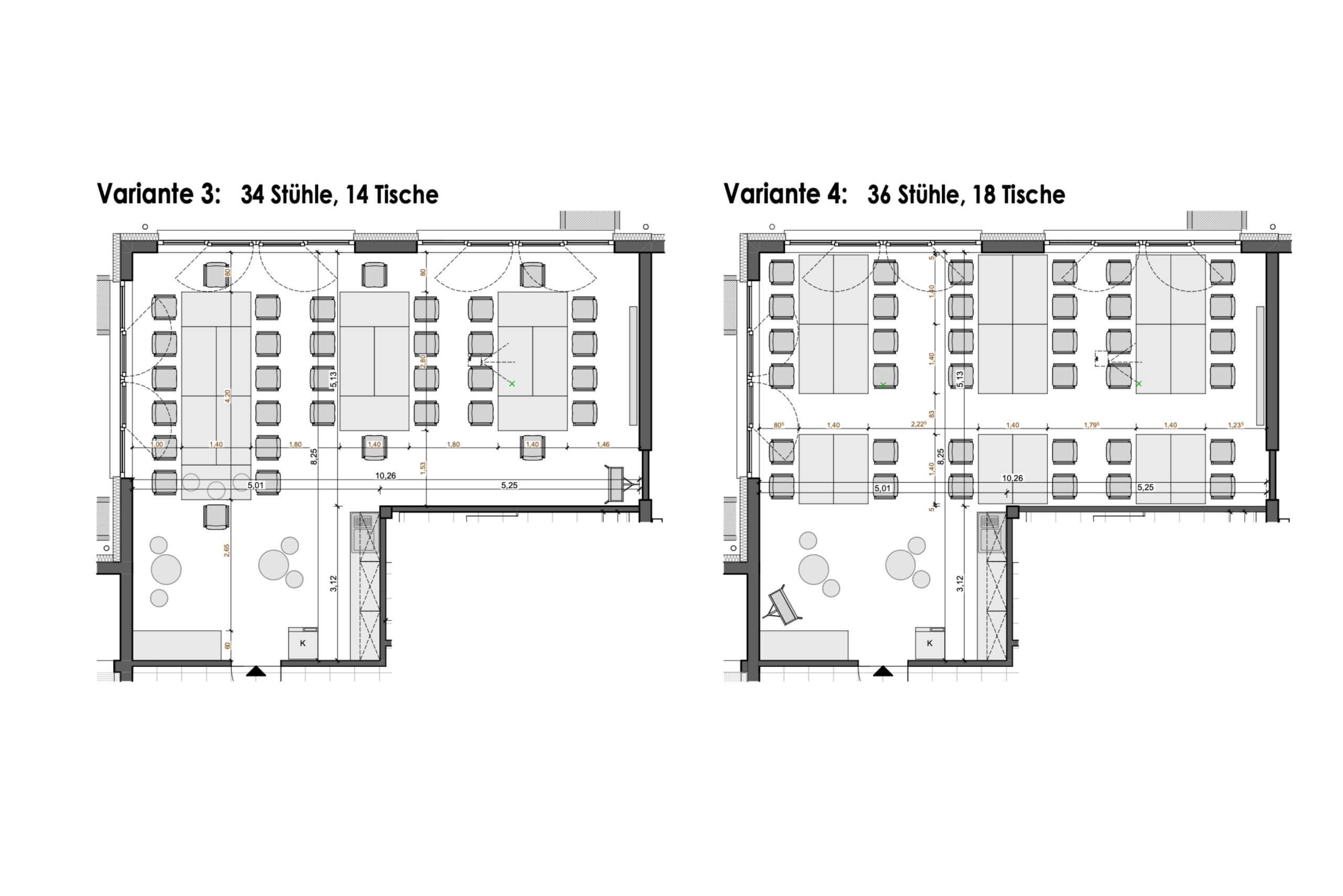
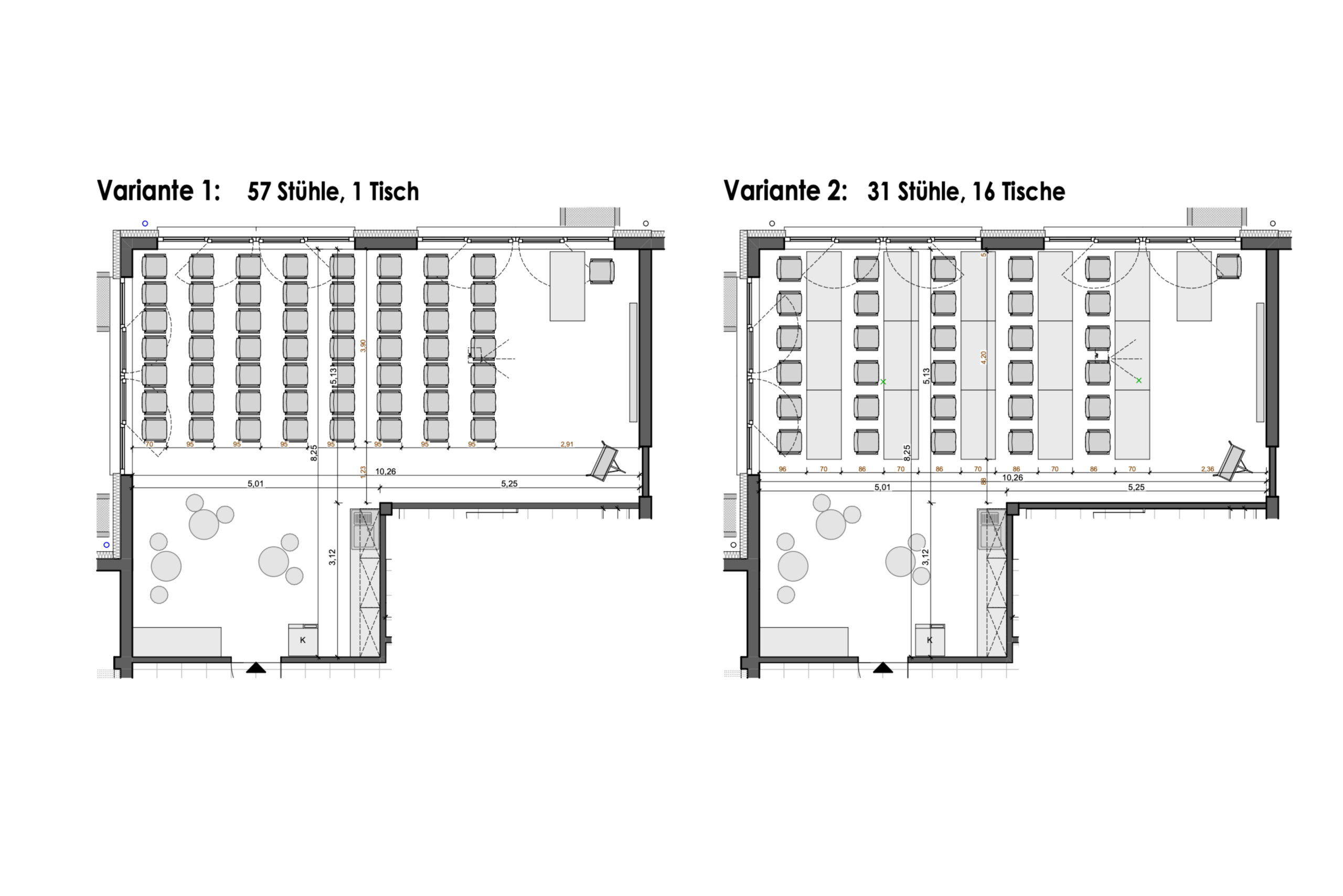
- 70 m²
- Steißlingen
Details
Auf Anfrage
- ca. 70 m²
- Flexibel verfügbar
- Bewirtung nach Wunsch
- Parkmöglichkeit vor Ort
- Barrierefreier Zugang
- kleine Küchenzeile im Eventraum
- Kunden-WC
- Steißlingen
Beschreibung
Moderner Event- & Tagungsraum – flexibel buchbar
Sie suchen eine stilvolle und vielseitige Location für Ihre nächste Veranstaltung? Der moderne Event- und Tagungsraum im Restaurant Essecke in Steißlingen bietet den idealen Rahmen für Meetings, Tagungen, Workshops, Seminare, Präsentationen, Firmenfeiern oder private Events im kleinen Kreis.
Auf ca. 70 m² erwartet Sie ein hochwertig ausgestatteter Raum mit individuell gestaltbaren Bestuhlungsvarianten, perfekt anpassbar an Ihre Anforderungen. Für Präsentationen steht ein Beamer zur Verfügung, während die akustische Dämmung und Klimatisierung für eine angenehme Atmosphäre sorgen.
Eine integrierte Küchenzeile im Veranstaltungsraum ermöglicht eine flexible und unkomplizierte Nutzung. Zusätzlich bietet das angrenzende Restaurant vielfältige Bewirtungsmöglichkeiten sowie individuelle Catering- und Serviceleistungen.
Weitere Vorteile
Separater, privater Eingang
Barrierefreier Zugang
Reichlich Parkplätze direkt vor Ort
Sehr gute Anbindung an nahegelegene Autobahnen
Die Buchung ist stundenweise, halbtags oder ganztags möglich. Preise und Leistungen erfolgen auf Anfrage, sodass wir ein maßgeschneidertes Angebot für Ihre Veranstaltung erstellen können.
Wir freuen uns auf Ihre Anfrage und unterstützen Sie gerne bei der Planung.
Standort
Jetzt anfragen!
Durch Klicken des Buttons erklären Sie sich ausdrücklich mit der Übermittlung der personenbezogenen Daten an uns einverstanden, wobei wir darauf hinweisen, dass diese Einwilligung jederzeit widerrufen werden kann. Bitte beachten Sie vor der Nutzung unseres Kontaktformulars unsere Hinweise zum Datenschutz.







